Skip to main content

Model Link

Click here to view model

Modelling

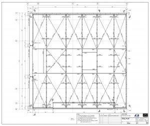
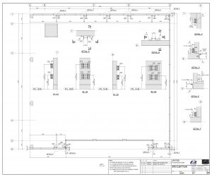
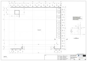
Steel drawings

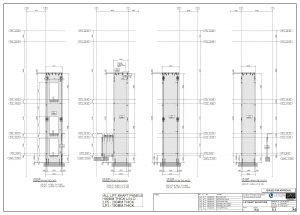
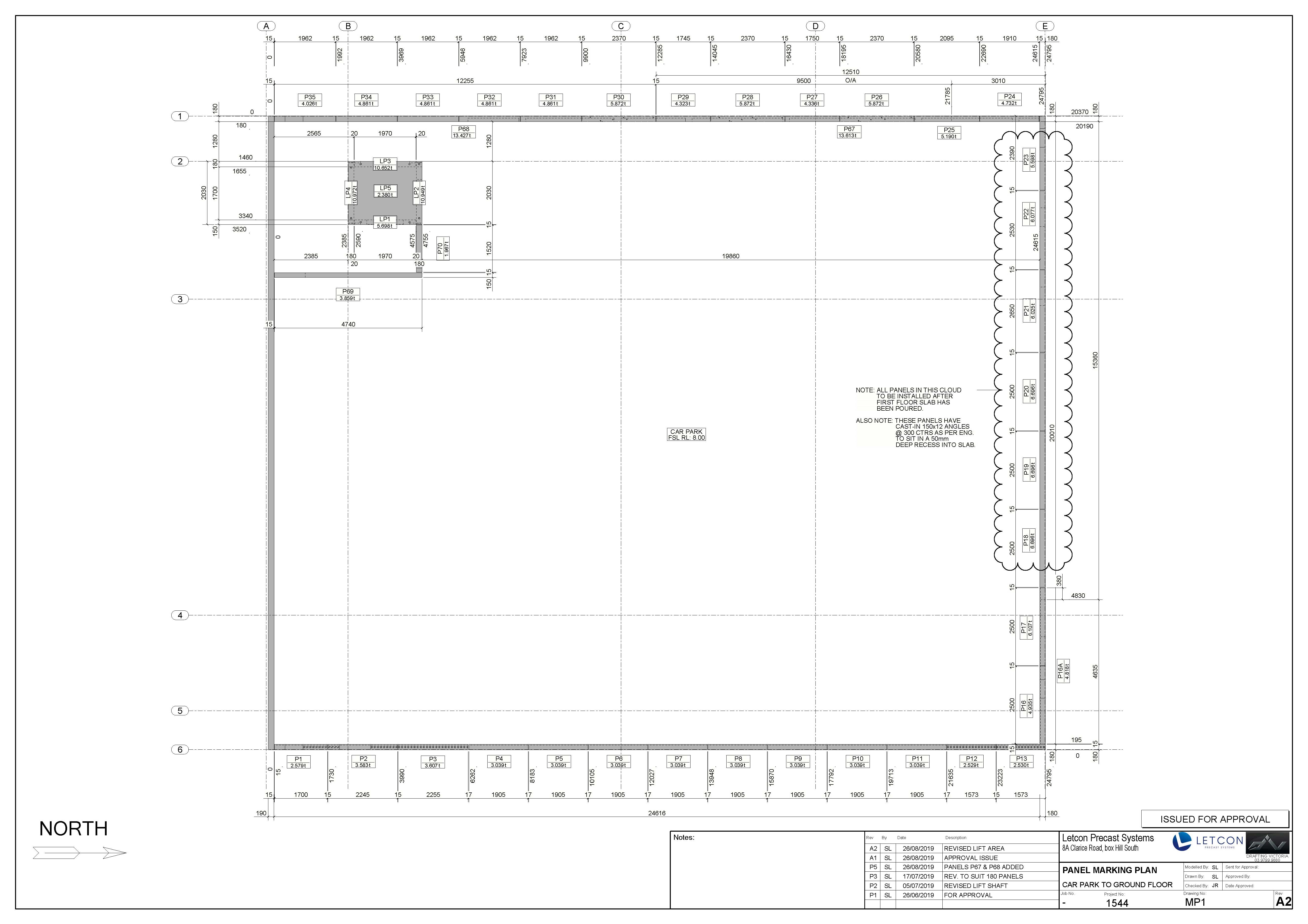
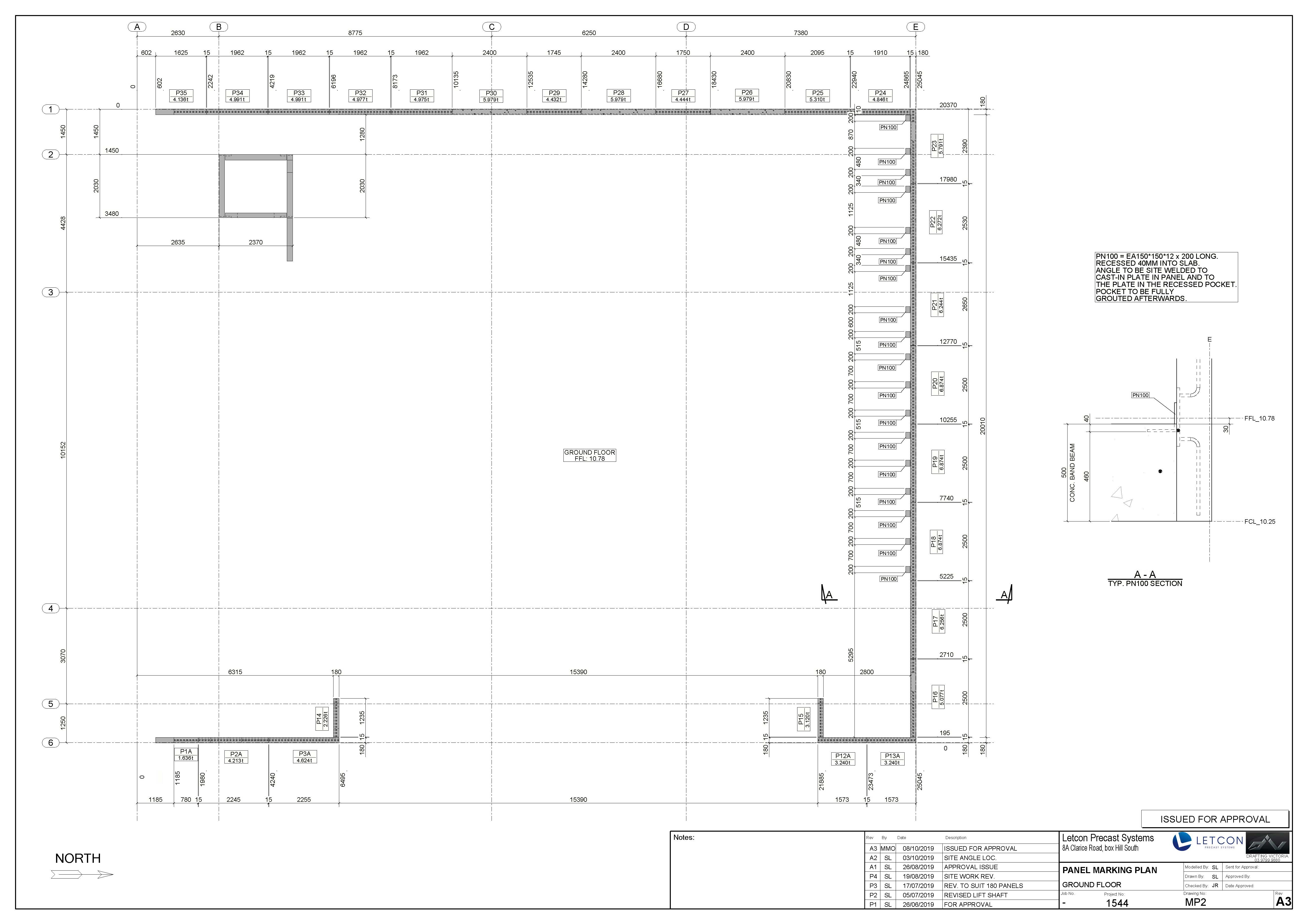
Precast drawings